Архитектурная студия DesignRVT
Разработка рабочей документации в Revit на заказ
Выполнено более 200 проектов
При разработке наших проектов мы учитываем эргономику пространства, удобство эксплуатации, комфорт проживания.

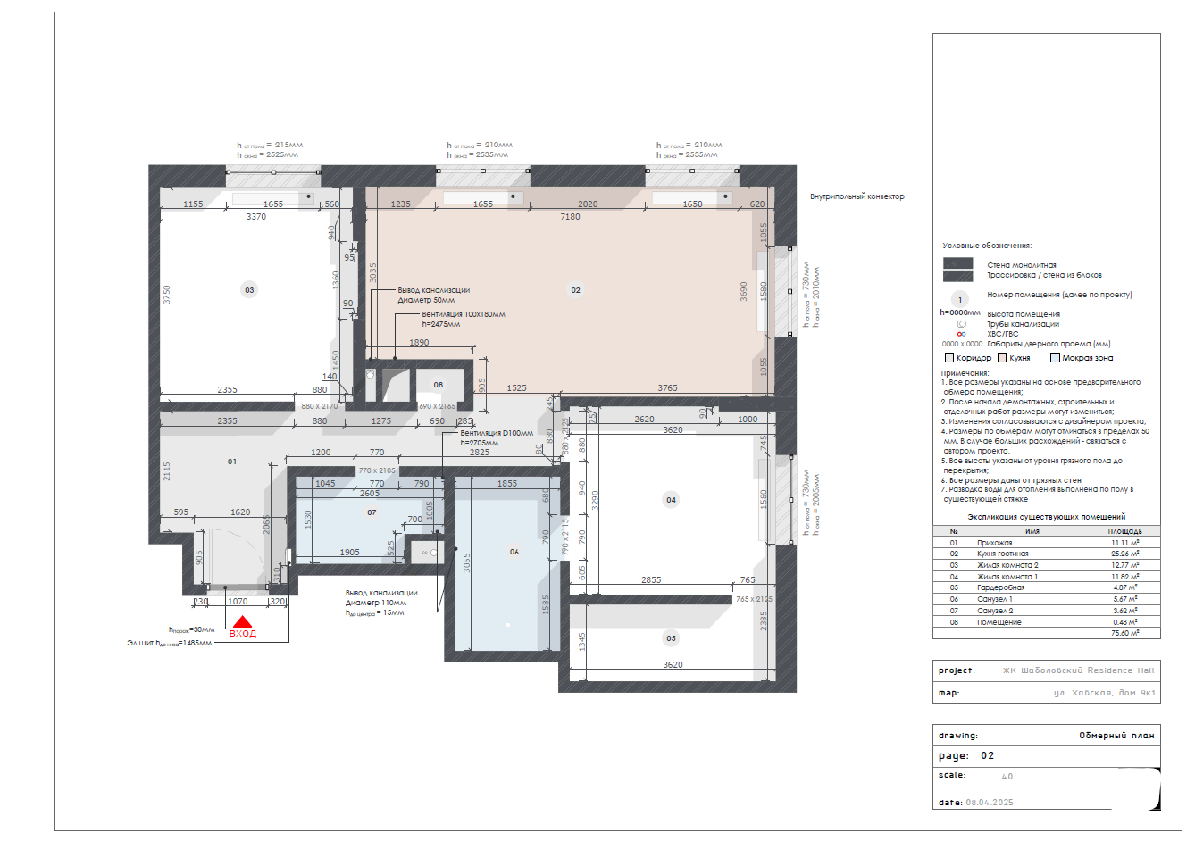
Обмер помещения
/ обмеры помещения в PDF формате
/ фото- видео- фиксация помещения

Разработка планировки
/ 3-4 варианта планировки на выбор
/ оформленный окончательный вариант

Технический проект
/ PDF проект, включающий в себя всю необходимую информацию для ремонта

Авторский контроль
/ выезд на объект для авторского сопровождения проекта
Пример проекта, который вы получите




Обмерный план
План демонтажа (при необходимости)
План монтажа перегородок и конструкций
План вентиляционных систем и кондиционирования (при необходимости)



Планировка
План теплых полов (при необходимости)
План напольных покрытий




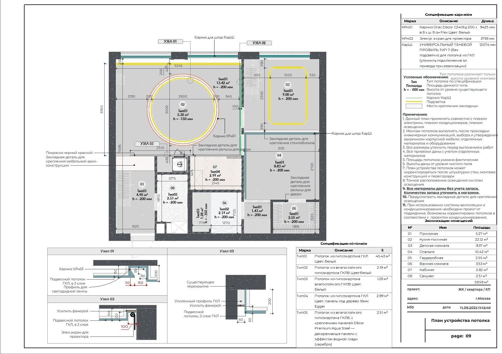
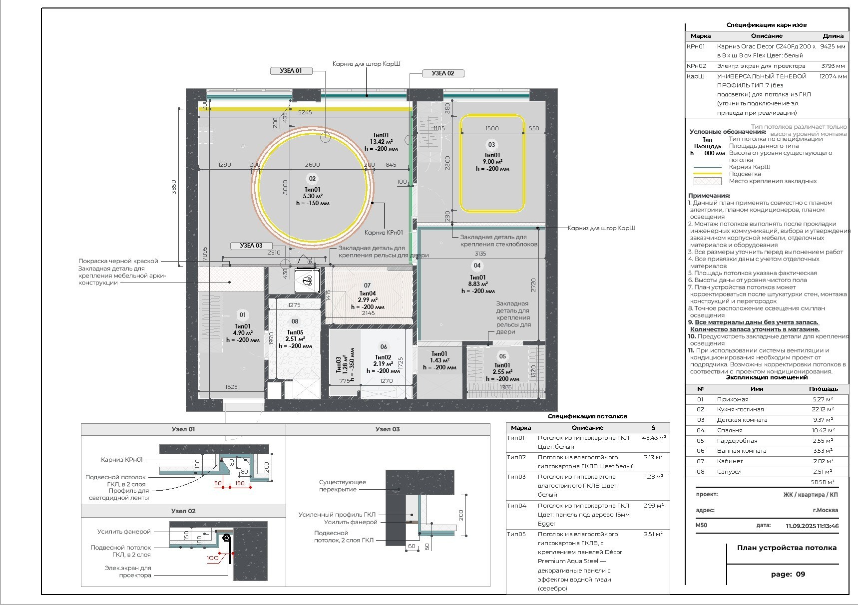
План потолков
План отделки стен
План расстановки осветительных приборов
План раскладки электрики



ЗD схемы помещений
Развертки стен
Мебель индивидуального исполнения (при необходимости)
Заказать у нас
Сроки исполнения (средние сроки, точные сроки прописываются в договоре):
проект 80кв.м — 1-2 недели на согласование планировки
3-4 недели на разработку проекта
Планы и схемы с размерами:
- Обмерный план / план демонтажа / план монтажа
- Планировка
- Расположение мебели и бытовой техники
- Размещение сантехнических приборов
- Схема теплых полов
- Раскладка напольных покрытий
- Схема потолков и карнизов / схема отделки стен
- Схема освещения и выключателей по группам
- Схема электрических розеток
- Развертки помещений (с раскладкой плитки и панелей)
- 3D схемы
